Вісім вдалих варіантів оформлення ванної кімнати у панельному будинку
Ванна кімната – це важливий простір у будь-якому домі, який може встановити тон усього інтер’єру. Особливо це актуально для мешканців панельних будинків, де можливості перепланування обмежені. Але існує безліч ефективних способів оформлення навіть скромних за площею санвузлів. У нашій статті ми поділимося успішними ідеями, які дозволять комфортно обладнати ваш простір, зокрема завдяки введенню практичних схем розміщення обладнання.
Вдало оформлена ванна кімната підвищує функціональність житла. Ігнорування специфіки розташування стояків може призвести до незручних рішень та збільшення витрат. Робота з професійними планами дозволяє уникнути типових помилок і створити гармонійний простір з мінімальними витратами для власника.
Насамперед, перепланування ванної кімнати вимагає уважного підходу до розташування стояків та перегородок. Багато власників ігнорують ці аспекти, що призводить до перевищення бюджету та дискомфорту. Переносити сантехнічні вузли в панельних будинках не лише складно, а й часто недоцільно. Існують зважені проекти, що беруть до уваги всі технічні нюанси та гарантують зручність та естетику.
Практичні схеми та вдалі приклади
Оптимізація простору у ванній кімнаті без перепланування — це справжнє мистецтво. Використання компактного, але функціонального обладнання, може радикально змінити сприйняття приміщення. Наприклад, правильно обрані меблі та матеріали здатні візуально розширити кімнату. Дотримання простих правил та рекомендацій допоможе вам уникнути вкладення коштів у зайві і неефективні рішення.
У панельних будинках важливо враховувати вологість стін між ванною та кухнею, щоб уникнути швидкого зносу облицювання.
Колірні рішення також мають важливе значення. Світлі тони здатні створити ілюзію простору та чистоти, в той час як темні кольори можуть стати окрасою, якщо їх використовувати з обережністю. Крім того, важливим є вибір матеріалів, стійких до вологи та грибків. Усі ці моменти можуть значно підвищити комфорт і продовжити термін служби вашої ванної кімнати, що особливо цінно в умовах багатоквартирних будинків.
Лаконічна ванна кімната
Площа московської двійки у панельному будинку – 49,6 кв. м, у ній проживає сім’я із двома дітьми. Під час ремонту ванну вирішили не поєднувати з туалетом: для сім’ї з чотирьох чоловік це рішення було усвідомлене. Незважаючи на маленький розмір приміщення, власники, вибираючи між душовою та ванною, вважали за краще залишити другий варіант. Простір розширений лише візуально: стіни викладені білою прямокутною плиткою, через що інтер’єр здається світлішим. Ненав’язливий акцент у вигляді орнаменту зроблено лише у зоні душової лійки.
Місцем для зберігання є містка тумба під раковиною: всі побутові засоби прибрані всередину, щоб не перевантажувати маленьку ванну деталями. Лаконічна обробка в нейтральних кольорах дозволяє змінювати обстановку без особливих витрат: варто тільки повісити нову шторку над ванною та інші рушники.
Дизайн “Студія Flatforfox”. Фотограф Катерина Любімова.




Поєднаний санвузол з оздобленням у природних тонах
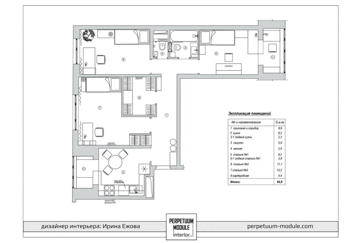
Площа трикімнатної квартири у панельному будинку – 65 кв. м. Тут вдалося розмістити цілих два повноцінні санвузли: замовниці (жінка з двома доньками) люблять приймати гостей, тому в обох приміщеннях встановили унітази, а в одному із санвузлів – невеликий рукомийник із дзеркалом.
На підлогу ванної уклали однотонний керамограніт, а стіни облицьовували двоколірною плиткою. Верх стандартний білий, а низ – сірий із складним зеленим підтоном. Акцентами є меблі з текстурою дерева і шторка з рослинним орнаментом. Тумба під раковину та унітаз – підвісні. Сантехприлад примикає до стіни, що не несе, з піноблоків, в якій захована інсталяція. Завдяки підвісним елементам приміщення здається просторішим, до того ж його легше прибирати.
Для обробки використаний керамограніт Marazzi та фарба Kansay Paint. Тумба, раковина, ванна та унітаз Jacob Delafon.
Дизайнер Ірина Єжова. Фотограф Діна Олександрова.





Ванна кімната з яскравими деталями
Метраж квартири у панельному будинку – 50 кв. м. У цій двошці проживає молоде подружжя, у якого нещодавно з’явився малюк. Головна вимога до дизайнера – простота інтер’єру з мінімальними витратами сил та часу на прибирання.
Ванна кімната, як і вся квартира, вийшла світла, але з контрастними елементами насичених кольорів. Як обробка використана світло-блакитна фарба, але в мокрій душовій зоні та нижній ділянці стіни укладена квадратна плитка. При вході в приміщення погляд упирається у яскраве дзеркало та синю тумбу. Її глянсовий фасад та полегшений дизайн працюють на зорове розширення простору.
У проекті використано фарбу Little Greene, плитку Bardelli та Сezzle. Меблі “Астра-Форм”, санфаянс Roca.
Дизайнер Міла Колпакова. Фотограф Євген Кулібаба.



Вишукана “мармурова” ванна кімната з душовою
Трикімнатна квартира площею 81 кв. м знаходиться у панельному будинку серії П-44Т. У ній проживає ділова жінка із сином-першокласником. Основна стилістика інтер’єру – американська класика. Внутрішні перегородки несучі, тому перепланування не знадобилося. Санвузли об’єднали попередні мешканці.
Хазяйка попросила замінити ванну на душову кабіну з прозорими дверцятами. Пральну машинку вдалося розмістити під єдиною стільницею зі штучного каменю. Унітаз встановили підвісною, а для зберігання речей та маскування труб спроектували господарські шафи. Ванна облицьована керамогранітом, що імітує мармур, тому ситуація виглядає благородно і вишукано.
Підлогове покриття та стіни – керамограніт Panaria. Меблі “Майстерня-13”, сантехніка Laufen, освітлення бра Eichholtz. Душова перегородка Vegas.
Дизайнер Олена Бодрова. Фотограф Ольга Шангіна.





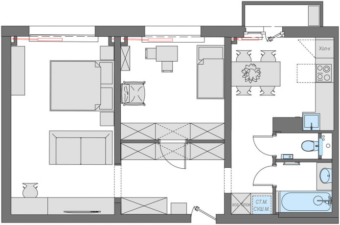
Проект сумісного санвузла у синіх тонах
Невелика двокімнатна квартира 51 кв.м знаходиться в панельному будинку серії П44-Т і належить молодій сім’ї з дитиною. Замовники скористалися можливістю перепланування у санвузлі та об’єднали ванну з туалетом. Це рішення дозволило сконструювати на площі, що звільнилася, шафу, в яку сховали пральну машину (відділ праворуч від висувних ящиків). Вся система зберігання продумана до дрібниць: використано кожен сантиметр, у тому числі місце над підвісним унітазом. Меблі виготовлені за ескізами авторів проекту.
Для обробки використана плитка Marazzi Italy і фарба Little Greene, на підлозі укладений керамограніт Wow. Санфаянс Roca.
Дизайн студії “Загальна площа”.





Ванна в англійському стилі
Власники трошки площею 75 кв. м. теж зіткнулися з обмеженнями під час перепланування квартири в панельному будинку, тому поміняли лише санвузол, об’єднавши туалет із ванною. Приміщення, що вийшло, збільшилося до 4 кв.м.
Господиня квартири – дизайнер, тому сама створювала інтер’єр для себе, чоловіка та дочки. Ванна кімната фанерована білим “кабанчиком”, але це не данина моді, а результат багаторічного кохання власниці до оздоблення, яке вперше побачила у лондонських друзів. Елегантності інтер’єру надає карниз з полотна і підлоговий килим з різнокольорових керамічних елементів. Головною окрасою ванної виступає темно-смарагдова тумба під раковину. Шторка для ванни має два шари: зовнішній декоративний та внутрішній водонепроникний.
Для обробки використана фарба Benjamin Moore, плитка Adex та TopCer. Тумба Caprigo, дзеркало “Сігнум”, санфаянс Villeroy & Boch.
Дизайнер Ніна Величко.




Монохромна ванна кімната
Метраж цієї “двушки” у панельному будинку – 51 кв.м. Тут мешкає сімейна пара з маленькою донькою та кішкою. Вся квартира витримана в чорно-білій гамі з вкрапленням золотих елементів, і ванна кімната не є винятком. Використовуючи вертикальний “кабанчик”, укладений контрастними смугами, дизайнер оптично збільшила висоту приміщення. Золоті елементи на панно та плафонах, а також металізований екран для ванни додають обстановці розкоші. Під керамічною стільницею розмістили пральну машинку, а навпроти неї розташували підвісну тумбу з раковиною.
Для стінок використовували плитку Kerama Marazz. Меблі “Акванет”, чавунна ванна Roca. Освітлення Лемана Про.
Дизайнер Олена Карасаєва. Фото Борис Бочкарьов.






Ванна кімната у бежевих тонах
Площа трикімнатної квартири у панельному будинку – 60 кв. м. Внаслідок узгодженого перепланування ванну збільшили за рахунок проходу на кухню. У приміщення є кілька ніш, що виходять через вентиляційний короб і вбудовану шафу в коридорі. Тут розмістили ванну зі скошеним кутом та скляною перегородкою. Пральну машинку встановили в поглибленні, а зверху сконструювали містку шафу.
Інтер’єр оформлений у бежевих та білих тонах. Світла нейтральна палітра, підвісні меблі та сантехніка, а також грамотне освітлення працюють на візуальне розширення простору.
Стіни та підлога облицьовані плиткою Equipe. Тумба Dreja, кошик для білизни Hoff, Riho ванна.
Дизайнер Юлія Савонова. Фотограф Ольга Мелекєсцева.





Ці проекти доводять, що незважаючи на маленький метраж, ванні кімнати в панельному будинку не тільки можуть поєднувати все необхідне, але й ефектно виглядати.
“`html
FAQ
Яким чином перепланування ванної кімнати у панельному будинку може підвищити функціональність приміщення?
Перепланування ванної кімнати у панельному будинку може суттєво підвищити функціональність приміщення, зокрема завдяки правильному розташуванню сантехніки та обладнання. На практиці, часто незручне розташування умивальника або пральної машини може створювати перешкоди у користуванні приміщенням. Урахування розташування стояків та оптимізація простору дозволяє не лише зекономити місце, але й створити комфортний інтер’єр. Детальніше про різні варіанти облаштування санвузла можна дізнатися в нашій статті.
Які дизайнерські рішення є оптимальними для ванної кімнати з малою площею?
Одна з найпоширеніших проблем у маленьких ванних кімнатах — це обмеженість простору. Всупереч поширеній думці, малий розмір не перешкоджає створенню стильного і функціонального інтер’єру. За рахунок використання світлих тонів та правильного освітлення можна візуально збільшити кімнату. Встановлення підвісних меблів також допомагає грамотному розподілу простору, звільняючи більше місця на підлозі. Ви можете дотримуватися порад щодо облаштування світлої ванни, щоб візуально розширити простір.
Які варіанти розміщення дверей забезпечують найбільшу зручність у ванній кімнаті?
Розміщення дверей є критичним аспектом при плануванні ванної кімнати, особливо в умовах обмеженого простору. Найкраще, коли двері відкриваються назовні або до стіни, щоб не займати внутрішній простір. Також важливо встановити їх так, щоб вони не перешкоджали доступу до основних елементів, таких як раковини або душові кабіни. Встановлення душової кабіни може допомогти заощадити простір під ванну.
Чи вигідно встановлювати вікно у ванній кімнаті?
Встановлення вікна у ванній кімнаті має свої переваги та недоліки. З одного боку, природне світло робить приміщення більш привітним і об’ємним, тоді як вікно забезпечує хорошу вентиляцію. З іншого боку, виникають питання приватності та безпеки. Вікно може вимагати додаткових витрат на елементи декору або спеціальне скло для захисту від посторонніх поглядів. Про те, як оптимально використовувати вікно в ванній, читайте у нашій статті про вибір вікна у ванну кімнату.
Які матеріали вибрати для оздоблення стін у ванній кімнаті?
У виборі матеріалів для оздоблення стін у ванній кімнаті важливо врахувати їхню водостійкість та легкість у догляді. Керамічна плитка вважається оптимальним варіантом, адже вона є як естетично прийнятною, так і практичною. Водостійкі фарби також можуть бути гарною альтернативою плитці, особливо якщо ви плануєте створити оригінальний дизайн. Деякі спеціалісти рекомендують застосовувати декоративну штукатурку, яка створює унікальність але потребує додаткової гідроізоляції.
Якої площі повинна бути ідеальна ванна кімната?
Ідеальна площа ванної кімнати залежить від чисельності мешканців та їх потреб. У середньому, для комфортного користування стандартною ванною кімнатою потрібно щонайменше 4-5 квадратних метрів. Така площа дозволяє розмістити всі необхідні елементи, такі як ванна, умивальник та унітаз. Але навіть на менших площах можна організувати зручний простір, якщо правильно підійти до вибору сантехніки та меблів. Наприклад, у ванній на п’ять квадратних метрів можна розмістити все необхідне, не втрачаючи комфорт.
Які основні переваги душової кабіни перед ванною?
Душові кабіни стають все більш популярними завдяки своїй компактності та функціональності. Перша і головна перевага — економія простору, що дуже важливо для маленьких ванних кімнат. Душові кабіни також дозволяють значно заощадити воду, що може суттєво зменшити ваших комунальних витрат. Крім того, сучасні моделі часто забезпечені додатковими функціями, такими як гідромасаж та парогенератори, що підвищують комфорт користування. Проте варто зауважити, що для багатьох людей ванни потребують меншої уваги у догляді, оскільки кабіни мають багато складових, що роблять регулярний догляд важливішим.
Як правильно організувати освітлення у ванній кімнаті?
Освітлення у ванній кімнаті грає ключову роль у створенні комфортної атмосфери і має бути різнопрофільним. Основне освітлення може бути вбудованим у стелю або функціонувати за рахунок центрального світильника. Додаткове підсвічування рекомендується над дзеркалом, для зручності під час виконання косметичних процедур. Для створення затишку варто уникати надто яскравого світла, яке робить приміщення непривабливим. Використання регульованих світильників дозволяє налаштувати атмосферу в залежності від потреби та настрій, забезпечуючи оптимальні умови для відпочинку або роботи. Не забувайте про водостійкість світильників у вологому середовищі.
“`